Corona-Auftrag in Bestzeit erledigt
Im Arbeitsleben werden wir in Zeiten der Corona-Pandemie mit Situationen konfrontiert, die sich etwas schwieriger gestalten und für die zuweilen unkonventionelle Lösungen erarbeitet werden müssen. Eine kleine Geschichte, die sich exakt so bei der Gerlinger Firma Walter Roller (www.walterroller.de) zugetragen hat, soll dies dokumentieren.
Die Situation
Anfrage eines technischen Versorgungsunternehmens aus dem Umfeld Klinikbau am 9. April 2020: Für einen neu zu schaffenden Behandlungsraum wird kurzfristig ein MRT-Gerät (Magnet-Resonanz-Tomographie) in einer Klinik angeliefert, mit dem künftig Patienten mit Lungenbeschwerden untersucht werden sollen. Die Anlieferung des Equipments soll bereits anderthalb Wochen später stattfinden. Da das MRT im Betrieb eine Menge Abwärme produziert, wird die Klimatisierung des vorgesehenen Raums nötig. Dafür wird ein Klimadeckengerät für den Betrieb mit Kaltwasser benötigt.
Die Anforderung
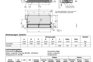
Lieferung eines Klimadeckengeräts (PKW), besonders leiser Betrieb, stufenlos drehzahlregelbare EC-Radialventilatoren, Kondenswasser-Pumpe eingebaut.
Der Vorab-Check
Welche Teile dafür sind vorrätig? Welche müssen gefertigt werden? Zukaufteile? – Lieferketten OK, Teile alle da und verfügbar. Verschlagverpackung – wird just in time besorgt.
Die Lieferzeit
Eine Arbeitswoche ab Bestelleingang ab Werk
Erledigt!
Binnen einer Woche wurden Lamellen gestanzt, Rohre gebogen, Sammler gefertigt und der Wärmetauscher gebaut. Gleichzeigt wurden Bleche gestanzt und gekantet und die Verdrahtung im Schaltkasten vorgenommen. Am 17. April wurde das „HKNDL 1200 EC“ in der Montage zusammengebaut und der Ausgangsprüfung unterzogen. Danach fehlte nur noch die Verpackung im Verschlag und das Gerät konnte geschützt zur Installation transportiert werden. In einer Arbeitswoche war das Klimagerät auslieferfähig und der Kunde hochzufrieden.
